Trilocale in vendita

Roma, Via Macedonia - Caffarella
€ 399.000
Prezzo aggiornato
3 locali 3 locali
96 Mq 96 Mq
2 bagni 2 bagni

Trilocale in vendita

Roma, Via Macedonia - Caffarella

Descrizione annuncio

A pochi passi dall'ingresso del parco Caffarella, è disponibile un appartamento in vendita che unisce comfort e praticità.

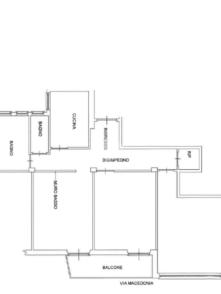
Situato al primo piano , l'immobile si estende su una superficie di 96 mq, offrendo spazi ben distribuiti e funzionali. L'appartamento in buono stato interno, è composto da ingresso, salone, cucina abitabile, due camere da letto, due bagni e ripostiglio, completa la proprietà un balcone con uscita da due ambienti .

L'immobile è l'ideale per chi cerca un'abitazione accogliente e ben collegata. La zona è caratterizzata da un'atmosfera tranquilla, pur essendo vicina a tutti i servizi essenziali e alle principali vie di comunicazione. La posizione strategica permette di godere delle bellezze naturali del Parco della Caffarella, a pochi passi dall'abitazione. Questa proprietà rappresenta un'opportunità interessante per chi desidera vivere in una delle aree più affascinanti di Roma, con la possibilità di personalizzare gli ambienti secondo le proprie esigenze.

Mostra tutto

Nelle vicinanze

Trasporto pubblico Trasporto pubblico
Furio Camillo
Furio Camillo
910 m
Ponte Lungo
Ponte Lungo
910 m
stazione di Roma Tuscolana
stazione di Roma Tuscolana
1,3 Km
Villini
Villini
2,1 Km
Carlo Felice
Carlo Felice
1,9 Km
Ricariche auto elettriche Ricariche auto elettriche
Roma Ponte Lungo | EnelX
890 m
Roma Appia | EnelX
950 m
Roma Ministero dell'Ambiente | EnelX
1,5 Km
Garage Cristoforo Colombo | EnelX
1,5 Km
Eneldrive Magnagrecia
1,6 Km
Scuole Scuole
Annibale Maria di Francia
510 m
Istituto Scolastico Paritario F.Hegel
610 m
Scuola Elementare Pubblica Ada Negri - Sede centrale
710 m
Scuola elementare Villa Lazzaroni
920 m
Liceo Augusto
960 m
Farmacia Farmacia
Farmacia
170 m
Dr. Fonsi
590 m
Di Gravina Niccolo
630 m
Farmacia Giovanni Ialacci
980 m
Frisoni
1,0 Km
Ospedali Ospedali
A.S.L. Roma C
1,6 Km
Nuova Clinica Annunziatella
1,8 Km
Pronto Soccorso San Giovanni Addolorata
1,9 Km
Azienda Ospedaliera San Giovanni-Addolorata (Presidio S.Giovanni)
2,0 Km
Policlinico militare di Roma "Celio"
2,0 Km
Supermercati Supermercati
Sir-Conad
210 m
Carrefour
310 m
In Coop
380 m
InCoop
590 m
D
600 m
Negozi Negozi
Negozi
470 m
Pam Local Via Baccarini
570 m
Abiti da lavoro
800 m
H&M
820 m
Altromercato
840 m
Bar Bar
Bar
250 m
Enoteca bonomi wine bar
760 m
Bar Tabacchi
870 m
buono Cocktail Bar
880 m
La carrot zeros
1,0 Km
Ristoranti Ristoranti
L'asino che vola
140 m
Ristoranti
290 m
Good Good pizzeria
320 m
La Caraffa
340 m
Sellero & Ventresca
350 m
Mostra tutto

Caratteristiche

Rif.:
61159419
Piano:
1 di 5 con ascensore (Piano basso)
Balconi:
1
Camere da letto:
2
Arredamento:
Assente
Condizionamento:
Assente
Mostra tutto
Prezzo Prezzo
€ 399.000
Rata mutuo Rata mutuo
€ 1.863 / mese
Spese annue Spese annue
€ 900
Proponi il tuo prezzoProponi il tuo prezzo

Classe Energetica

D
D
D
D
D
D
D
D
D
EP globale non rinnovabile:
143.75 kW h/m² anno
EP invernale del fabbricato:
EP estiva del fabbricato:
Anno di costruzione:
1950
Riscaldamento:
Centralizzato
Tipo impianto:
A radiatori
Tipo alimentazione:
Metano

Prezzo ridotto di €1 (5%%)

Ti interessa visionare l'immobile?

Fissa un appuntamento  Fissa un appuntamento

Richiedi informazioni

Clicca su Leggi per aprire l'informativa
* Questi campi sono obbligatori

Calcola il tuo mutuo

Semplice e senza impegno
Anticipo

( % )
Mutuo

( % )

pochi semplici passi

inserisci i tuoi dati
Questionario completato
Grazie per aver richiesto un appuntamento senza impegno con un nostro Consulente del Credito e Assicurativo.

Hai inserito correttamente tutti i dati necessari e a breve riceverai una e-mail con un link da convalidare per inviare i tuoi dati.
Affiliato
Studio Immobiliare Caffarella Srl
Circ. Appia, 111 00179 Roma (RM)
Circ. Appia, 111 00179 Roma (RM)
Zona: San Giovanni-Caffarella-Appio Latino
Mostra su mappa
Orari: dal Lunedì al Venerdì dalle 09:00 alle 19:30 Il Sabato dalle 09:00 alle 18:00
Affiliato
Studio Immobiliare Caffarella Srl
Circ. Appia, 111 00179 Roma (RM)

2026 Tecnocasa Franchising S.p.A. - P. IVA 08365160152 - Via Monte Bianco 60/A 20089 Rozzano (MI). Ogni agenzia ha un proprio titolare ed è autonoma. Privacy policy | Policy utilizzo | Cookie policy